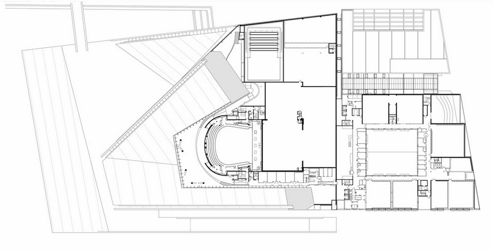
مثلها مثل الكثير غيرها من المدن الساحلية قامت أوسلو بإعادة تصميم موقعها على الواجهة البحرية دار الأوبرا هو أكبر مبنى ثقافييتم بناؤه في النرويج منذ بناء كاتدرائية نيداروس في تروندهايم (حوالي عام 1300) تعتبر رمزا هاما لما تمثله النرويج كدولة ويعكس أهمية دور الأوبرا و الباليه في المجتمع وبناء دار الأوبرا الجديد هو أكبر مبادرة ثقافية سياسية بالنسبة للنرويج الحديثة تُكَّون أرضيته ما يعادل مساحة أربعة ملاعب دولية لكرة القدم و بداخل المبنى 1100 غرفة مقسمة إلى مجموعات في أقسام عدة صممتها شركة الهندسة المعمارية سنوهيتا وتصميم دار الأوبرا هي الوسيط بين منطقتين و تربط الأرض بالبحر وفريق الهندسة المعمارية اختار لما يكون نصبا تاريخيا و ليس لما يعلو كتمثال نحت و على العكس النصب التاريخي هو نصب اجتماعي خشبة مسرح قديم على المستوى الإنساني الأوبرا عبارة عن أرض جميله و مبنى وبهذا المعنى فهي تخفي وظيفتها الموسيقية الفعلية و تختار ان تكون ذات استخدام مزدوج والسقف على علو 32 م مصمم ليكون مكان عام يشمل انكسارات ضوء مثيرة ودرج وزوايا وعناصر مثل برج الطيران بارتفاع 54 م في تلاعب بسيط و لكنه سار بين الخطوط الأفقية و الرأسية و المائلة هو بساط سحري حيث يستطيع الفرد أن يتنزه ويجلس ويقوم بعمل رحلة والمبنى له شكل خارجي صلب حجر طبيعي و زجاج و جزء داخلي ناعم خشب الأرو والسقف و أجزاء كثيرة من الحوائط الخارجية و الفناء الأمامي و البهو مكسوة أو مغطاة بعدد 38,000 من صفائح رخام كرارا البيضاء المتألقة والجدار الخارجي في الناحية الشمالية و منطقة على البحر مجهزة بالجرانيت النرويجي والمناطق العامة في الجهة الأمامية والغربية بها حوائط زجاجية ضخمة للسماح برؤية لا يحجبها شيء على أوسلو فيورد تم دمج لوح شمسي ضخم في أحدهم وفي الخلف توجد المرافق التجارية في أكثر من أربع طوابق و قبو مثل ورش عمل وغرف للتدريبات ومكاتب وغرف تغيير الملابس و مخازن جميعها مرن و سهل التكيف وظائفهم موضحة بالتكسية الأفقية من الألومونيوم بتشكيل ينبض بالحياة في الضوء.
![]()
























رد مع اقتباس