النتائج 1 إلى 4 من 4
الموضوع:

خريطة منزل مع الواجهة (5*20)

الزوار من محركات البحث: 561 المشاهدات : 3729 الردود: 3
جميع روابطنا، مشاركاتنا، صورنا متاحة للزوار دون الحاجة إلى التسجيل ، الابلاغ عن انتهاك - Report a violation
  1. #1
    من المشرفين القدامى
    بياض الثلج
    تاريخ التسجيل: September-2016
    الدولة: ❤ In his heart ❤
    الجنس: أنثى
    المشاركات: 17,449 المواضيع: 7,623
    صوتيات: 7 سوالف عراقية: 0
    التقييم: 9619
    مزاجي: ماشي الحال
    المهنة: موظفة
    أكلتي المفضلة: تشريب احمر
    موبايلي: نوكيا5
    آخر نشاط: 23/May/2020

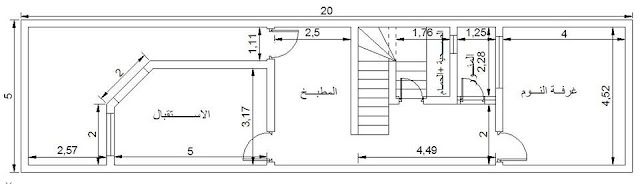
    خريطة منزل مع الواجهة (5*20)

    نقدم لكم خريطة منزل مع الواجهة (5*20)

    نتمنى ان تنال اعجابكم ...



    مخطط الطابق الارضي

    مخطط الطابق الاول

  2. #2
    من المشرفين القدامى
    تاريخ التسجيل: January-2017
    الدولة: لا وطن
    الجنس: ذكر
    المشاركات: 9,194 المواضيع: 883
    التقييم: 1450
    مزاجي: احبكم كلمة متفارك لساني
    المهنة: معماري
    أكلتي المفضلة: .....
    موبايلي: Galaxy S5
    بارك الله بيك

  3. #3
    من اهل الدار
    اااااه يا أخي
    تاريخ التسجيل: January-2016
    الدولة: 1993/1/25
    الجنس: أنثى
    المشاركات: 45,911 المواضيع: 3,834
    التقييم: 12898
    مزاجي: الحمدلله
    المهنة: مادام لي ربا يرى حالي❤فما لي أدفن في اليأس امالي
    أكلتي المفضلة: كلشي احب
    موبايلي: ايفون6
    آخر نشاط: 21/December/2019
    حلوووو

  4. #4

تم تطوير موقع درر العراق بواسطة Samer

قوانين المنتديات العامة

Google+

متصفح Chrome هو الأفضل لتصفح الانترنت في الجوال